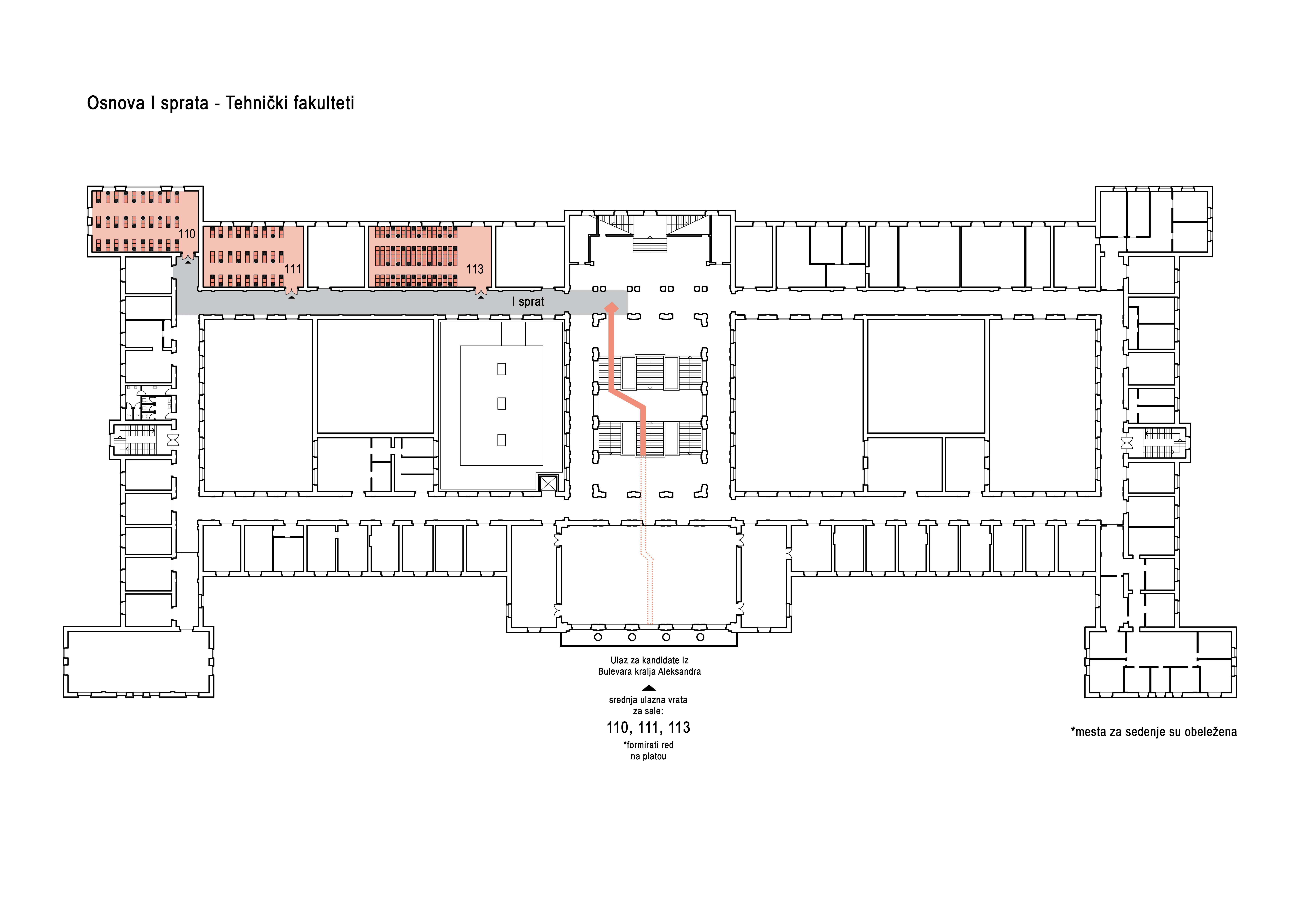
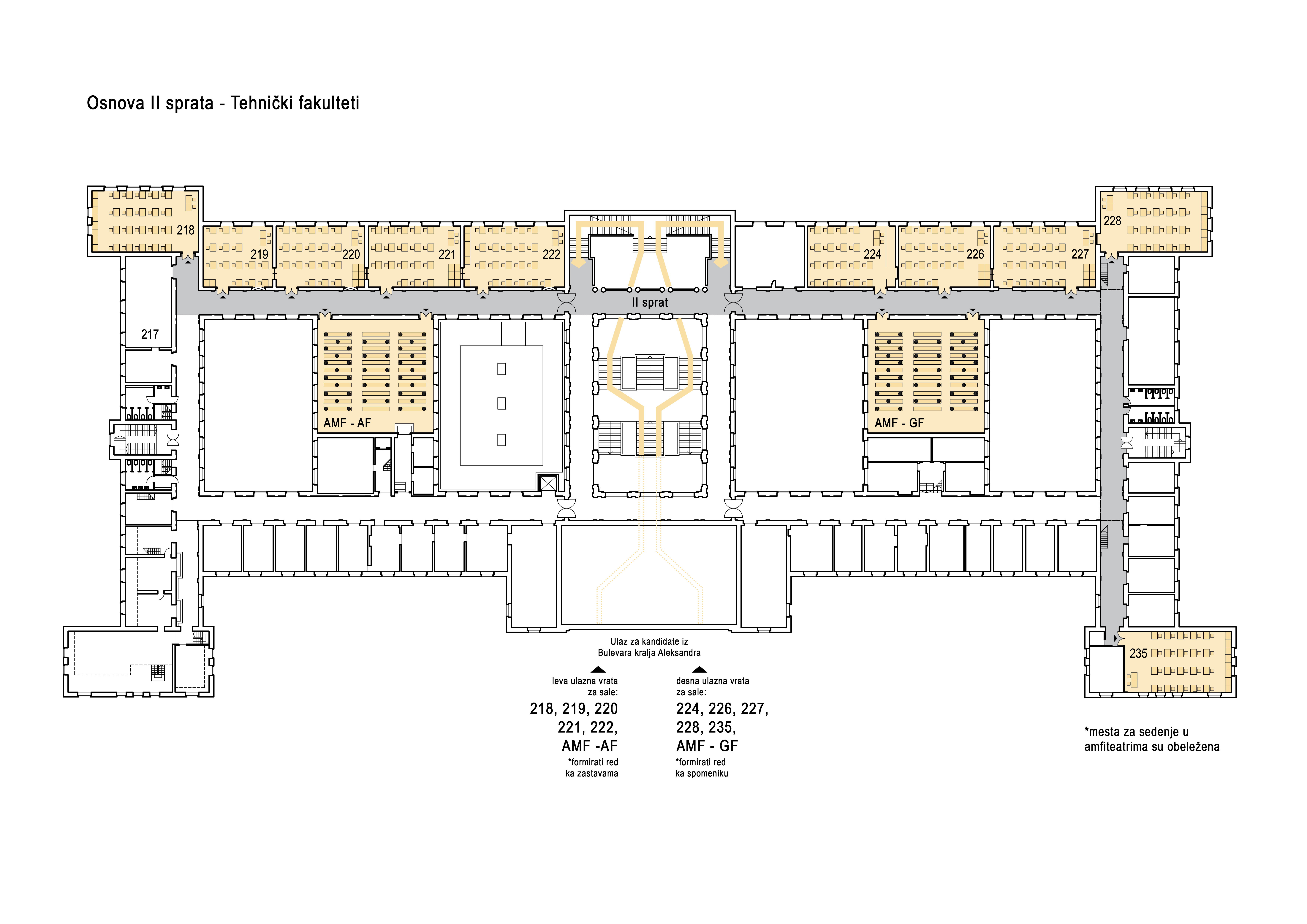
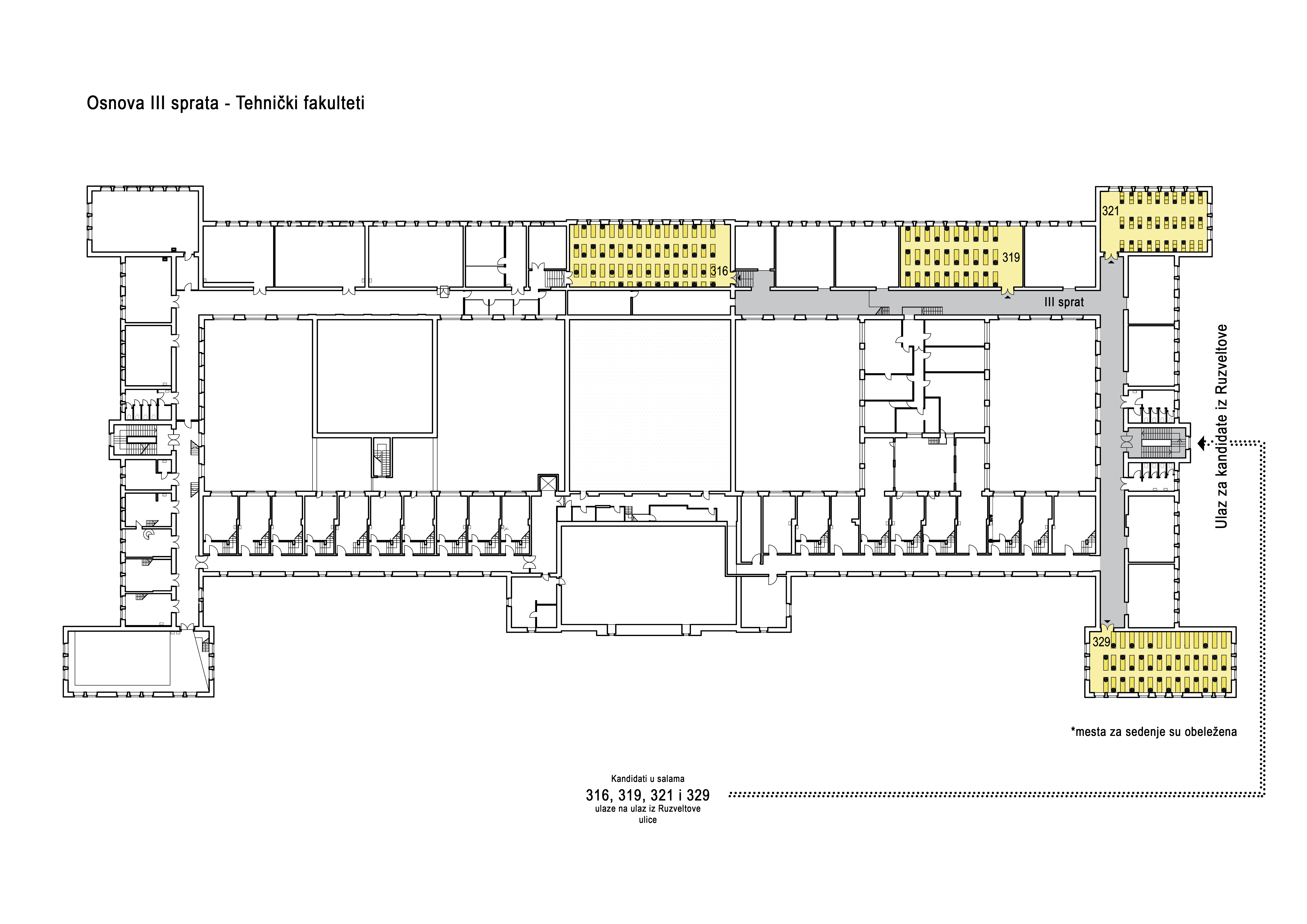
Ulazak u zgradu tehničkih fakulteta će biti organizovan iz Bulevara kralja Aleksandra, kao i iz Ruzveltove ulice, na bočnom ulazu, sa parkinga. Kandidati su podeljeni u grupe, prema salama u kojima polažu prijemni ispit i shodno tome, ispred odgovarajućeg ulaza. Raspored grupa za ulazak po salama je prikazan u prilogu ove objave.
Kandidati se okupljaju na predviđenom mestu za ulazak u zgradu, najkasnije do 10 sati. U 10 sati počinje prozivanje kandidata prema spisku sale u kojoj polažu prijemni ispit. U zgradu mogu ući isključivo kandidati koji su prijavljeni za polaganje prijemnog ispita i poseduju potpisana i validna dokumenta za polaganje prijemnog ispita. Preporučujemo kandidatima da na polaganje dođu sami kako se ispred ulaza u zgradu ne bi pravila nepotrebna gužva i kako bi mogla da se poštuje soicijalna distanca.
Kandidat po pozivu prilazi dežurnom na ulazu u zgradu. Dežurni vrši identifikaciju kandidata i preuzima od kandidata potpisan prijavni list i potpisanu saglasnost. Dežurni parafom overava propusnicu za polaganje prijemnog ispita. Nakon toga, kandidat bez zadržavanja ide ispred sale u koju je raspoređen, gde čeka da se sala otvori. Dežurni ispred sale proverava propusnicu i upućuje kandidata na mesto u sali gde će polagati prijemni ispit.
Kandidati su dužni da poštuju ovaj protokol i sve instrukcije koje dobiju od dežurnih lica. Kandidat se ne sme kretati van predviđenih putanja koje su naznačene na mapi fakulteta. Kandidat mora, čim završi prijemni ispit, u najkraćem mogućem roku da napusti zgradu. Kandidati su dužni da u svakom trenutku poštuju mere za sprečavanje širenja zaraze Covid-19 i da obavezno koriste zaštitne maske i rukavice u zatvorenom prostoru, kao i da održavaju distancu od min 1,5 metara od drugih osoba. Kandidati bez zaštitne opreme neće moći da polažu prijemni ispit.










