420 архитектонских дела такмиче се за награду Европске уније за савремену архитектуру – Mies van der Rohe награда 2015.
Међу њима и 6 номинових пројеката из Србије!
Европска комисија и Фондација Mies van der Rohe објавили су листу од 420 номинованих пројеката који се такмиче за награду Европске уније за савремену архитектуру – Mies van der Rohe награда 2015.
Опширније о Mies van der Rohe награди 2015 можете прочитати у нашој претходној вести: Mies van der Rohe награда 2015: објављене номинације
Номиновани пројекти из Србије
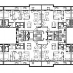
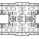
1. Стамбено-пословни објекат „Маxима” комплекс, блок 11а, ГП-3
Биро / Архитекта
БАЛАНС-СТУДИО ДОО / Милан Вујовић
Сарадник
Будимир Судимац
Локација
Београд, Србија
Стамбено-пословни објекат„Maxima”комплекс, Београд ©Milan Vujović
- Stambeno-poslovni objekat „Maxima” kompleks ©Milan Vujović
- Stambeno-poslovni objekat „Maxima” kompleks ©Milan Vujović
- Stambeno-poslovni objekat „Maxima” kompleks ©Milan Vujović
- Stambeno-poslovni objekat „Maxima” kompleks ©Milan Vujović
- Stambeno-poslovni objekat „Maxima” kompleks ©Milan Vujović
- Stambeno-poslovni objekat „Maxima” kompleks ©Milan Vujović
- Stambeno-poslovni objekat „Maxima” kompleks ©Milan Vujović
- Stambeno-poslovni objekat „Maxima” kompleks ©Milan Vujović
2. Комбинована дечија установа /Вртић/ “Тесла – Наука за живот“
Биро / Архитекта
ДВА: СТУДИО / Милан Ђурић, Милка Гњато, Александру Вуја, Слађана Миливојевић
www.dvastudio.rs
Локација
Београд, Србија
Комбинована дечија установа /Вртић/ “Тесла – Наука за живот“ ©Реља Иванић
- Kombinovana dečija ustanova /Vrtić/ “Tesla – Nauka za život“
- Kombinovana dečija ustanova /Vrtić/ “Tesla – Nauka za život“
- Kombinovana dečija ustanova /Vrtić/ “Tesla – Nauka za život“ ©ALEKSANDRU VUJA
- Kombinovana dečija ustanova /Vrtić/ “Tesla – Nauka za život“ ©RELJA IVANIĆ
- Kombinovana dečija ustanova /Vrtić/ “Tesla – Nauka za život“ ©RELJA IVANIĆ
- Kombinovana dečija ustanova /Vrtić/ “Tesla – Nauka za život“ ©RELJA IVANIĆ
- Kombinovana dečija ustanova /Vrtić/ “Tesla – Nauka za život“ ©RELJA IVANIĆ
- Kombinovana dečija ustanova /Vrtić/ “Tesla – Nauka za život“ ©RELJA IVANIĆ
Номиновани пројекти из Србије
3. Пословно-стамбени објекат
Биро / Архитекта
ЕФЕКАТ УАУ / Дејан Тодоровић
Локација
Београд, Србија
Пословно-стамбени објекат ©Владимир Поповић
- Пословно-стамбени објекат ©Владимир Поповић
- Пословно-стамбени објекат ©Владимир Поповић
- Пословно-стамбени објекат ©Владимир Поповић
- Пословно-стамбени објекат ©Владимир Поповић
- Пословно-стамбени објекат ©Владимир Поповић
- Пословно-стамбени објекат ©Владимир Поповић
- Пословно-стамбени објекат ©Владимир Поповић
- Пословно-стамбени објекат ©Владимир Поповић
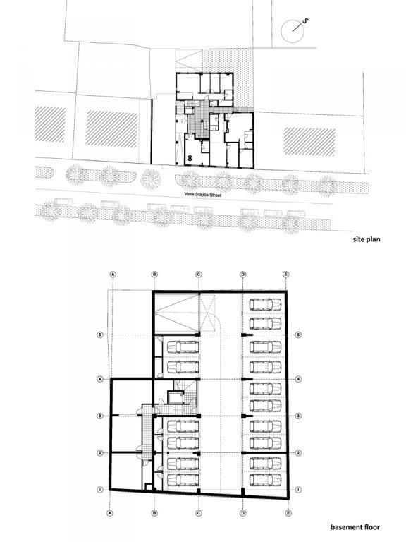
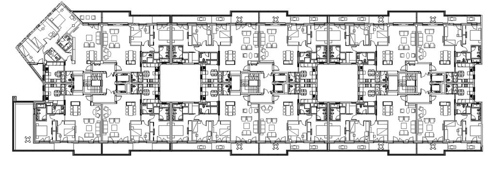
4. Стамбена зграда у улици Васе Стајића 8, Нови Сад
Биро / Архитекта
KUZMANOV AND PARTNERS
Лазар Кузманов, Миљан Цвијетић
www.kuzmanovandpartners.com
Локација
Нови Сад, Србија
Стамбена зграда у улици Васе Стајића 8, Нови Сад ©Миљан Цвијетић
- Стамбена зграда у улици Васе Стајића 8, Нови Сад ©Миљан Цвијетић
- Стамбена зграда у улици Васе Стајића 8, Нови Сад ©Миљан Цвијетић
- Стамбена зграда у улици Васе Стајића 8, Нови Сад ©Миљан Цвијетић
- Стамбена зграда у улици Васе Стајића 8, Нови Сад ©Миљан Цвијетић
- Стамбена зграда у улици Васе Стајића 8, Нови Сад ©Миљан Цвијетић
- Стамбена зграда у улици Васе Стајића 8, Нови Сад ©Миљан Цвијетић
Номиновани пројекти из Србије
5. Објекат C и Објекат D, Културно – туристички комплекс Terra Panonica
Биро / Архитекта
СТУДИО АУТОРИ
Душан Ненадовић, Дијана Новаковић, Маја Трбовић, Александра Никитин
www.autori.rs
Локација
Мокрин, Србија
Објекат C и Објекат D, Културно – туристички комплекс Terra Panonica, Мокрин ©Реља Иванић
- Објекат C и Објекат D, Културно – туристички комплекс Terra Panonica, Мокрин ©Реља Иванић
- Објекат C и Објекат D, Културно – туристички комплекс Terra Panonica, Мокрин ©Реља Иванић
- Објекат C и Објекат D, Културно – туристички комплекс Terra Panonica, Мокрин ©Реља Иванић
- Објекат C и Објекат D, Културно – туристички комплекс Terra Panonica, Мокрин ©Реља Иванић
- Објекат C и Објекат D, Културно – туристички комплекс Terra Panonica, Мокрин ©Реља Иванић
- Објекат C и Објекат D, Културно – туристички комплекс Terra Panonica, Мокрин ©Реља Иванић
- Објекат C и Објекат D, Културно – туристички комплекс Terra Panonica, Мокрин ©Реља Иванић
- Објекат C и Објекат D, Културно – туристички комплекс Terra Panonica, Мокрин ©Реља Иванић
6. Регионални центар индустријског наслеђа Сењски Рудник
Биро / Архитекта
ТИМОТИЈЕВИЋ-ПЕТРОВИЋ
Михаило Тимотијевић, Мирослава Петровић-Балубџић
Локација
Деспотовац, Србија
Регионални центар индустријског наслеђа Сењски Рудник, Деспотовац ©Милица Лопичић
- Регионални центар индустријског наслеђа Сењски Рудник, Деспотовац ©Милица Лопичић
- Регионални центар индустријског наслеђа Сењски Рудник, Деспотовац ©Милица Лопичић
- Регионални центар индустријског наслеђа Сењски Рудник, Деспотовац ©Милица Лопичић
- Регионални центар индустријског наслеђа Сењски Рудник, Деспотовац ©Милица Лопичић
- Регионални центар индустријског наслеђа Сењски Рудник, Деспотовац ©Милица Лопичић
- Регионални центар индустријског наслеђа Сењски Рудник, Деспотовац ©Милица Лопичић
- Регионални центар индустријског наслеђа Сењски Рудник, Деспотовац ©Милица Лопичић
- Регионални центар индустријског наслеђа Сењски Рудник, Деспотовац ©Милица Лопичић
















































